Hauptinhalt
Objekt 1: Gewerbefläche in St. Pölten-Süd verfügbar
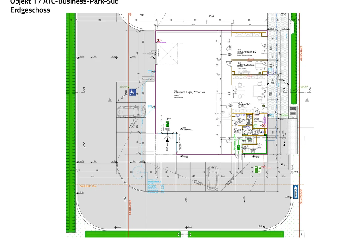
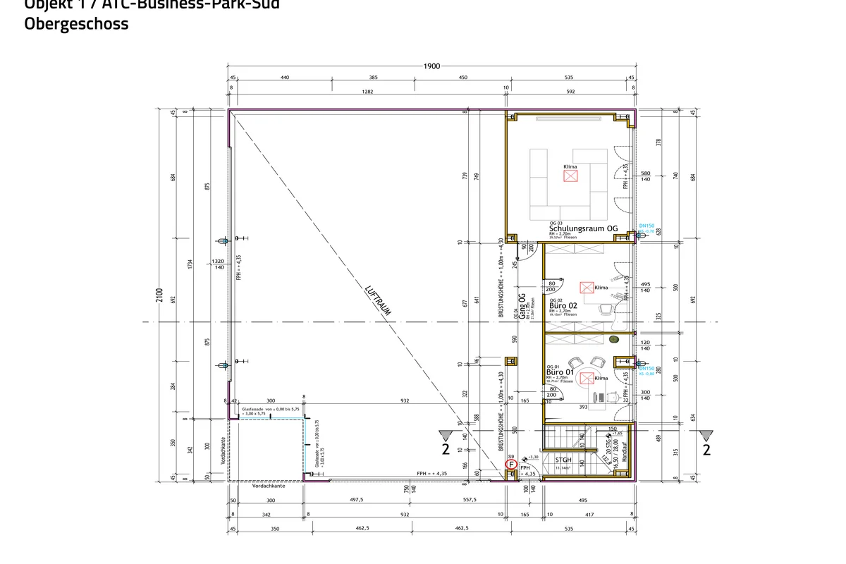
Das Objekt 1 befindet sich in bester Lage im ATC-Business-Park-Süd direkt an der Mariazeller Bundesstraße, in unmittelbarer Nähe der Auf- und Abfahrt A1 / St. Pölten-Süd.
Verfügbare Fläche (nur gesamt mietbar): 520 m²
- EG: ca. 390 m²
- OG: ca. 130 m²
Durch die flexible Bauweise ist nahezu jeder Mieterwunsch möglich, die Raumaufteilung ist flexibel gestaltbar. Eine Nutzung zum Beispiel als Schauraum, Produktions- oder Lagerhalle, Werkstatt, Büro ist möglich.
Das modern gestaltete Gewerbeobjekt bietet dank ergonomischer Raumlösungen, großer Fensterfronten mit Sonnen- und Schallschutzverglasung sowie energieeffizienter Niedrigenergiebauweise ein produktives und kosteneffizientes Umfeld für Ihr Unternehmen.
Das Gewerbeobjekt ist ab 1. Oktober 2026 verfügbar.
Der endgültige Mietpreis richtet sich nach dem individuellen Ausbau und Ausstattungsumfang.
Ihr neuer Betriebsstandort wartet! Kontaktieren Sie uns unter office@atc-immobilien.at oder +43 2742 22 992 53 – wir stehen Ihnen gerne mit unserem Erfahrungsschatz aus mehr als 30 Jahren zur Seite.
Weitere Vorteile auf einen Blick:
- Provisionsfrei
- Werbemöglichkeiten realisierbar
- Parkplätze direkt vor der Tür
- Elektroparkplätze möglich
- Für jegliche Art von Gewerbe geeignet
- Ideal für Start-ups aufgrund moderner Infrastruktur
- Namhafte Unternehmen in direkter Nachbarschaft
- Nahversorger / Gastronomie in unmittelbarer Nähe
Lage:
- Direkte Auf- und Abfahrt A1 / St. Pölten-Süd
- A1 Anbindung - Wien Auhof 30 min
- Über Knoten A1/S33 – Wien Nord 50 min
- Krems 30 min / Hollabrunn / Brünn Tschechien
- Bushaltestelle direkt vor dem ATC-Business-Park-Süd
- Perfekte Bahnanbindung (Westbahn oder ÖBB) nach Wien-West oder Wien-Hauptbahnhof, sowie Flughafen Wien (ab ca. 22 Minuten Fahrzeit) - bzw. nach Linz-Salzburg-München

Weckt eine maßgeschneiderte Betriebsstätte in bester Gesellschaft und Lage Ihr Interesse?
Reinhard J. Pasteiner I Eigentümer der ATC Gruppe




